Gebäudeart
Anbau
Bauort
Hasbergen
Wohnfläche
+ 35 m2
Fassade
Putz
Dach
Flachdach, Abdichtung/Dachterrasse
Architekt
Holzbau Heggemann - A. Denoke
ÜBER DAS PROJEKT
Nicht nur innerhalb des neuen Anbaus genießt die sechsköpfige Familie unserer Kunden in Hasbergen nun zusätzlichen Raum und mehr Lebensqualität. Auch auf der neuen Dachterrasse lässt es sich bestens aushalten. Offenheit durch ein in sich geschlossenes Konzept für die Wohnraumerweiterung in Holzrahmenbauweise ist ein Markenzeichen von uns.


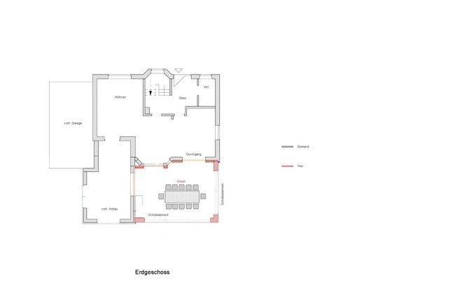
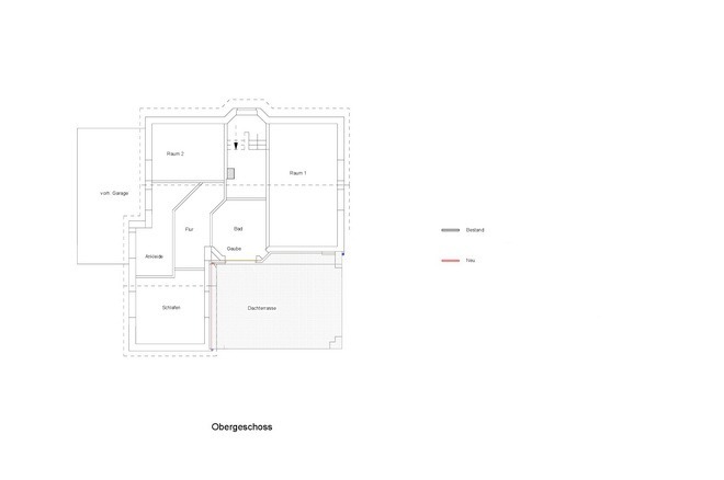
Anbau mit Dachterrasse in Hasbergen: Lückenschluss für mehr Offenheit und Geselligkeit
Wenn eine Familie Zuwachs bekommt und ohnehin gern die Gesellschaft von vielen Menschen genießt, heißt es schon mal: zusätzlichen Raum durch einen Anbau schaffen! In Hasbergen haben wir auf diese Weise gleich mehrfach Lücken geschlossen: Zum einen wurde das L-förmig angelegte Wohngebäude durch die Erweiterung so ergänzt, dass das Haus nun eine rechteckige Grundfläche hat und in sich geschlossen wirkt.
Zum anderen haben wir mit der Holzrahmenbauweise wertvollen neuen Raum geschaffen, in der sich die Familie an dem großen Tisch mit Gästen trifft: mehr Raum auf 35 m² für mehr Zeit in Geselligkeit!

Auch auf der neuen Dachterrasse lässt es sich bestens aushalten.
Viel Behaglichkeit und ein toller Ausblick
Die großen Fensterflächen mit Dreifachverglasung lassen viel Tageslicht in den Anbau und tragen zur freundlichen Atmosphäre bei. Schön ist natürlich auch der Ausblick auf den direkt angrenzenden Garten. Zugleich sorgen die Fußbodenheizung und die Außendämmung auch an kälteren Tagen effizient für Behaglichkeit.
Zum Bestandsgebäude hin haben wir den Übergang ebenfalls offen gestaltet. Dabei konnte die sechsköpfige Familie den bereits bestehenden Wohnraum trotz der Umbaumaßnahmen durchgängig weiter nutzen. Für diese Zeit errichteten wir eine Staubschutzwand, die wie eine Schleuse funktionierte und den Innenraum stets sauber hielt.
Noch mehr Lebensraum eröffnete sich durch das Anlegen der Dachterrasse auf dem Anbau. Von hier aus lässt sich perfekt die Sonne genießen! Auch für diesen Part übernahmen wir die Planung, die unter anderem die statischen Berechnungen umfasste. Mit den Bauherren arbeiteten wir die ganze Zeit über Hand in Hand, schließlich realisierten sie einen Teil der Ausbauarbeiten mit Eigenleistungen.
Sind auch Sie offen für neue Ideen rund um die Erweiterung Ihres Wohnraums? Gern zeigen wir Ihnen, wie Sie mit einem Anbau einen deutlichen Mehrwert für Ihr Haus schaffen! Sprechen Sie uns an.
(Fotos: Simone Reukauf)

