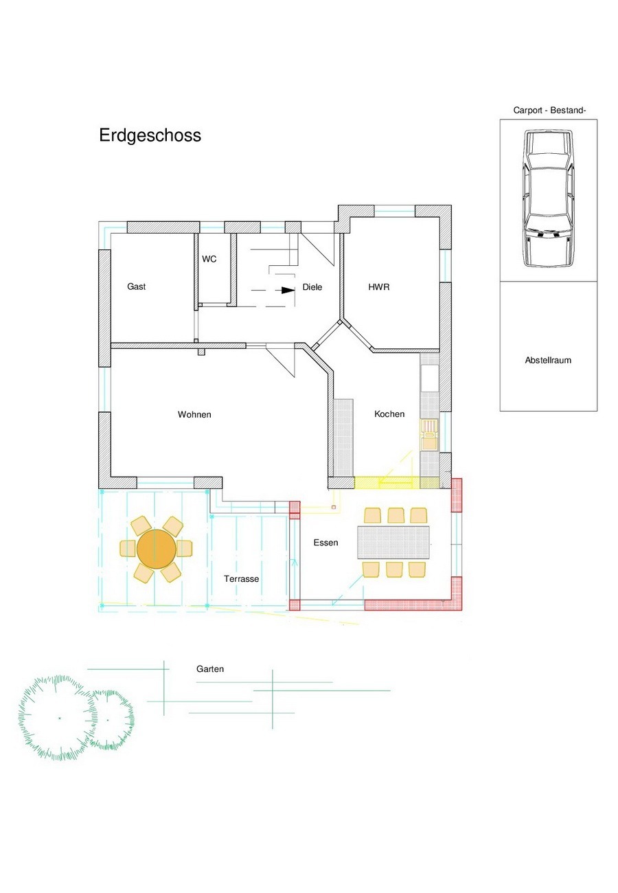
Gebäudeart
Anbau
Bauort
Osnabrück-Sutthausen
Wohnfläche
+ 15 m2 innen, + 20 m2 überdachte Terrasse
Fassade
Stülpschalung, Pinie/Lärche
Dach
Flachdach, Bitumenabklebung
Architekt
Holzbau Heggemann - A. Denoke
ÜBER DAS PROJEKT
Mit einem gestalterisch ansprechenden Anbau den Raum für Genüsse erweitern und mit ökologischen Baustoffen die Umwelt schonen – so geht Nachhaltigkeit!
Eben dies ist auch bei diesem Referenzobjekt der Fall. Das Einfamilienhaus der Baufamilie verfügte über eine recht kleine Küche, die erweitert werden sollte. Und weil für den neuen Anbau nur ökologische Bau- und Dämmstoffe eingesetzt werden sollten, lag es für die Hausbesitzer nahe, Holzbau Heggemann anzusprechen.
Ein weiterer Vorteil unserer Bauweise ist, dass wir die wesentlichen Bauelemente in der eigenen Halle vorfertigen und entsprechend schnell auf der Baustelle zusammenfügen können.


Ökologisch gebaut und gedämmt
Nach gründlicher Planung entstand eine bauliche Erweiterung, die innen den Koch-Ess-Bereich um 15 m2 ausdehnt und außen den Bezug zur Natur mit einer attraktiven Holzfassade unterstreicht. Bei den Dämmmaterialien entschieden sich die Bewohner auf Empfehlung von Heggemann für Zellulose und Holzfasern.
Von der neuen Küche aus bleibt zudem durch das große Fenster der Blick auf den Garten erhalten. Ein Raffstore sorgt für Abkühlung an heißen Tagen und ermöglicht zugleich entspannende Ausblicke auf das Umfeld des Hauses.
Hinzu kam eine hochwertige Überdachung der Terrasse. Im Außenbereich entstand auf diese Weise ein 20 m2 umfassender offener Raum für den nachhaltigen Genuss. Das lasierte Fichtenholz sowohl der Anbaufassade als auch der Überdachung schafft eine gelungene optische Einheit.
Drinnen und draußen – Lebensbereiche verschmelzen
Um den Platz an der Sonne jederzeit genießen zu können, wurden Sonnenschutz-Markisen unterhalb des Sicherheitsglases angebracht. Die Terrasse verfügt nun über zwei Zugänge: einerseits – wie bereits vor dem Umbau – zum Wohnzimmer, andererseits zum neuen Küchenbereich.
„So kann die Familie das Leben noch besser genießen. Nicht nur kulinarisch, sondern auch durch die vereinfachte Nutzung von Garten und Terrasse. Und dies lässt sich durch die gut durchdachte Planung des Anbaus samt Überdachung ideal miteinander verbinden“, sagt Daniel Aumüller von Heggemann.
(Fotos: Simone Reukauf)

