Gebäudeart
Anbau
Bauort
Bissendorf
Wohnfläche
+ 40 m2 Wohnraum, + 33 m2 überdachte Terrasse, + 10 m2 Gartenhaus
Fassade
Stülpschalung, grau lasiert
Dach
Flachdach, Bitumenabklebung
Architekt
Holzbau Heggemann - A. Denoke
ÜBER DAS PROJEKT
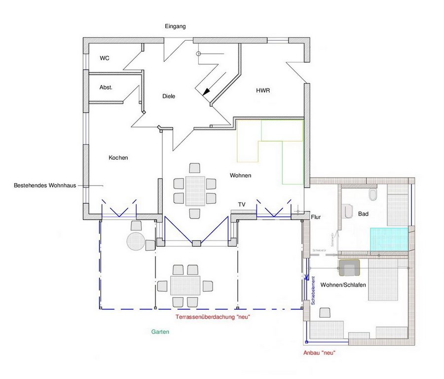
Optisch bilden der neue Anbau, die Terrassenüberdachung und das Gartenhäuschen auf der Südseite des Bissendorfer Einfamilienhauses eine attraktive Einheit. Zugleich setzt sich das Ensemble von der Architektur des Bestandsgebäudes, das rund 15 Jahre zuvor errichtet wurde, deutlich ab.
Daniel Aumüller von Heggemann erklärt zur Gestaltung: „Wir waren uns mit den Hausbesitzern sofort einig, dass der Anbau und die beiden anderen neuen Anlagen einen eigenen Akzent setzen sollten. Die unterschiedlichen Zeitabschnitte, auf denen die einzelnen Bestandteile der Immobilie entstanden sind, sollten sichtbar bleiben. Eine ungefähre Angleichung des Baustils hätte einen Bruch bedeutet, der störend gewirkt hätte. Aber dieser offensichtliche Kontrast mit den drei wie aus einem Guss erstellten Elementen setzt einen spannenden Akzent.“


Mut zur Lücke – mit faszinierender Rhombusschalung
Grau lasiertes Fichtenholz stellt die Verbindung zwischen Anbau, Terrasse und Gartenhäuschen her. Die Gestaltung der Fassade und der Gartenhütte mit einer Rhombusschalung beweist ganz bewusst Mut zur Lücke. Denn bei dieser Bauweise sind die Leisten nicht durch Nut und Feder miteinander verbunden, sondern auf Abstand gesetzt.
Bei der Erweiterung der Wohnfläche war Barrierefreiheit eine entscheidende Vorgabe. Auf rund 40 Quadratmetern im Anbau ist der ebenerdig zugängliche Wohnraum hell und freundlich gestaltet, und das Bad bietet auch für Menschen mit eingeschränkter Bewegung maximalen Komfort – inklusive bodengleicher Dusche und unterfahrbarem Waschtisch. Die bei allen Projekten von Heggemann übliche sehr gute Dämmung sorgt überdies für ein angenehmes Raumklima.

Sonne oder Schatten? Ganz nach Wunsch!
Das neue, rund 33 Quadratmeter messende Terrassendach verbindet nun den Anbau außen mit dem Bestandsgebäude. Das Dach besteht aus Sicherheitsglas, darunter befindet sich eine ausfahrbare Markise. So können die Bewohner hier ganz flexibel Sonne oder Schatten genießen.
Komplettiert wird das Trio durch die Gartenhütte, die knapp 10 Quadratmeter umfasst und von Heggemann für das bequeme Verstauen von Gartengeräten & Co. mit Schiebetoren versehen wurde.
Haben Sie ebenfalls vor, Ihren Wohnraum zu erweitern oder Teile Ihrer Immobilie neu zu gestalten? Wir beraten Sie gern!
(Fotos: Simone Reukauf)

