Gebäudeart
Anbau
Bauort
Osnabrück-Natbergen
Wohnfläche
+ 45 m2
Fassade
Stülpschalung Lärche
Dach
Flachdach, Bitumenabklebung
Architekt
Holzbau Heggemann - A. Denoke
ÜBER DAS PROJEKT
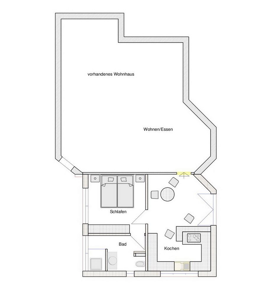
Die Wohnfläche im Erdgeschoss erweitern, den Komfort für die Bewohner im Alltag erhöhen und mit ökologischen Baustoffen auf Nachhaltigkeit setzen: Mit diesen Zielen erstellten wir in Osnabrück-Natbergen einen Anbau in Holzrahmenbauweise. Es entstand eine abwechslungsreiche Architektur, die den Nutzern ganz neue Möglichkeiten eröffnet.


Barrierearmes Wohnen bei komfortablem Mehrwert
Wie ein Anbau in Holzrahmenbauweise einen komfortablen Mehrwert schafft, zeigt Heggemann anhand einer Wohnraumerweiterung in Osnabrück-Natbergen. Hier ging es den Besitzern des Einfamilienhauses in erster Linie darum, altersgerechte Vorsorge zu treffen sowie das barrierearme Wohnen im Erdgeschoss auszudehnen – und zwar nachhaltig! Der Einsatz ökologischer Dämmungen und weiterer umweltschonender Materialien spielte hierbei eine wichtige Rolle.
Wer heute schon an morgen denkt, hat länger etwas davon: Nach dieser Maxime haben die Bauherren entschieden, ihr Einfamilienhaus zu erweitern und dabei auf die nachhaltigen Lösungen von Hausbau Heggemann zu setzen. Weil die Bewohner ihren Lebensmittelpunkt mit Blick auf die Zukunft nicht auf zwei Etagen verteilen, sondern auf ein Geschoss konzentrieren wollten, bot sich der Anbau an. Der komfortable Wohnraum im Erdgeschoss vergrößerte sich dadurch von 95 auf 140 m2.

Abwechslungsreiche Architektur
Auch das Obergeschoss bietet nun zusätzlichen Wohnraum, der sich bei Bedarf ganz flexibel nutzen lässt. Der neue Gebäudeteil besitzt – im Gegensatz zum Bestandsgebäude mit dem Satteldach – ein Flachdach und eine großzügige Terrasse. Wer den Ausblick auf das ländliche Osnabrück-Natbergen genießen möchte, ist hier genau richtig!
So entstand eine interessante, reizvolle Architektur, die verschiedene Stile zusammenführt: hier die traditionelle Massivbauweise, dort die moderne Holzbauvariante mit klarer Geometrie und schnörkellosem Design. Die Fassade des neuen Trakts greift mit ihrer Stülpschalung in Lärchenholz den Wunsch nach einer natürlichen Umgebung auf. Dieser Ansatz setzt sich im Inneren mit den bewusst sichtbar gehaltenen Holzdeckenbalken fort. Und für Nachhaltigkeit in punkto Energieeffizienz sorgt die gute Dämmung, für die Heggemann weithin bekannt ist.
(Fotos: Simone Reukauf)

