Gebäudeart
Mehrfamilienhaus
Bauort
Melle-Neuenkirchen
Wohnfläche
9 Wohneinheiten, 750 m2
Fassade
Putz
Dach
Walmdach, Tondachziegel rot
Architekt
Hans-Gerd Kammann
ÜBER DAS PROJEKT
Die intelligente Kombination aus Holz- und Massivbauelementen schafft die Grundlage für neun komfortable Wohnungen mit zeitgemäßer Ausstattung. Ein Fahrstuhl verbindet alle Ebenen bequem miteinander, integrierte Garagen bieten praktischen Alltagskomfort. Als Effizienzhaus 55 setzt das Gebäude auf nachhaltige Technik und einen reduzierten Energiebedarf – ein zukunftsfähiges Wohnkonzept für vielfältige Ansprüche.


Nachhaltig geplant und gestaltet
Die vorhandene Grundstücksfläche haben wir gemäß den örtlichen Rahmenbedingungen der Bauvorschriften – wie Größe, Geschossigkeit, Abstand zu den angrenzenden Liegenschaften etc. – optimal genutzt. Ein intelligenter Mix aus Betonteilen und Holzrahmen bringt die Vorteile der unterschiedlichen Bauweisen zusammen. Der hohe Vorfertigungsrad der Rahmenbauelemente und die schnelle Errichtung auf der Baustelle verkürzen die Bauzeit im Vergleich zur klassischen Massivbauweise erheblich. Dies vereinfacht zudem die gesamten Abläufe, die – von der ersten Planung bis zur Gartengestaltung – komplett in den Händen von Holzbau Heggemann liegen.
Hervorragende Dämmung und die Solarthermie-Anlagen auf dem Dach garantieren effizienten Energieeinsatz und langfristig niedrige Betriebskosten. So konnten wir Nachhaltigkeit und Wirtschaftlichkeit ideal miteinander vereinbaren.
Weit hinten, hinter den Wortbergen, fern der Länder Vokalien und Konsonantien leben die Blindtexte.
Perfekte Perspektiven durch große Fenster und einladende Außenbereiche
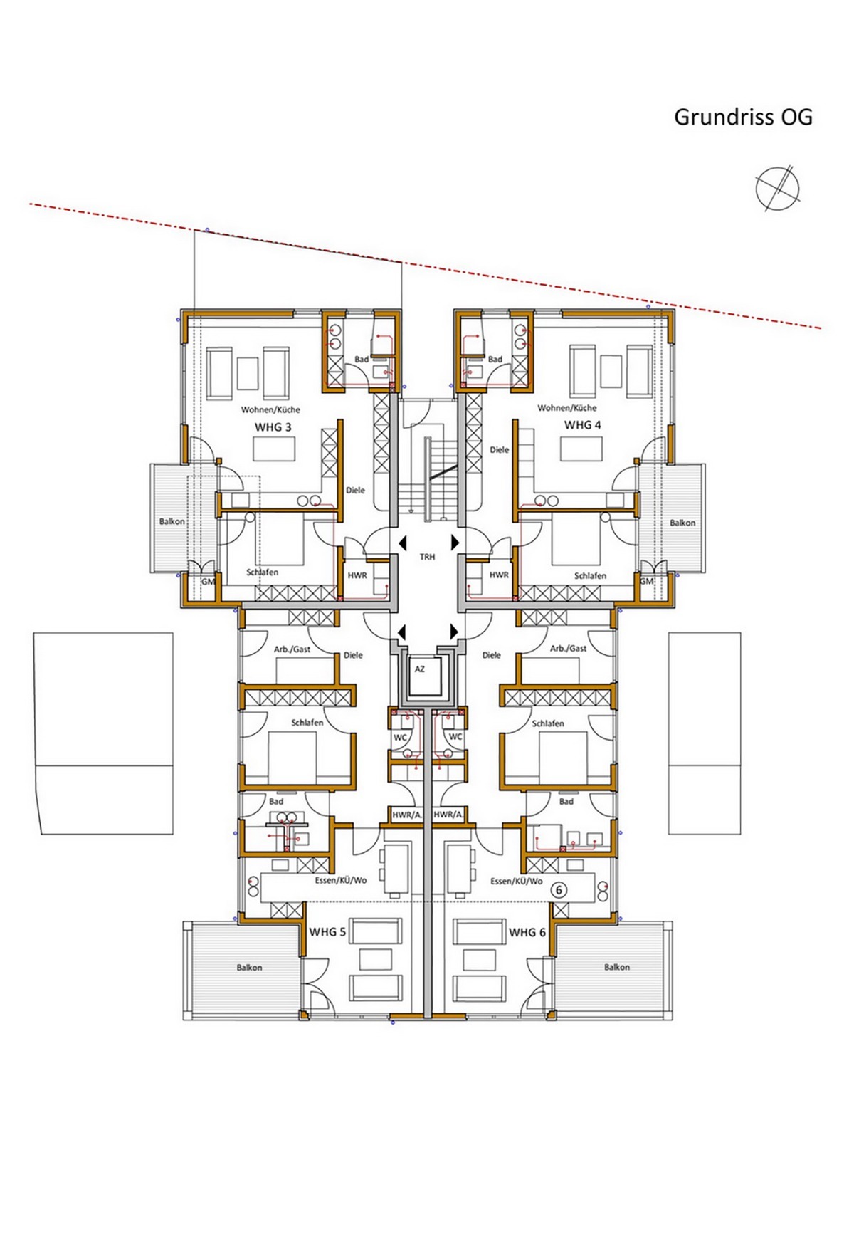
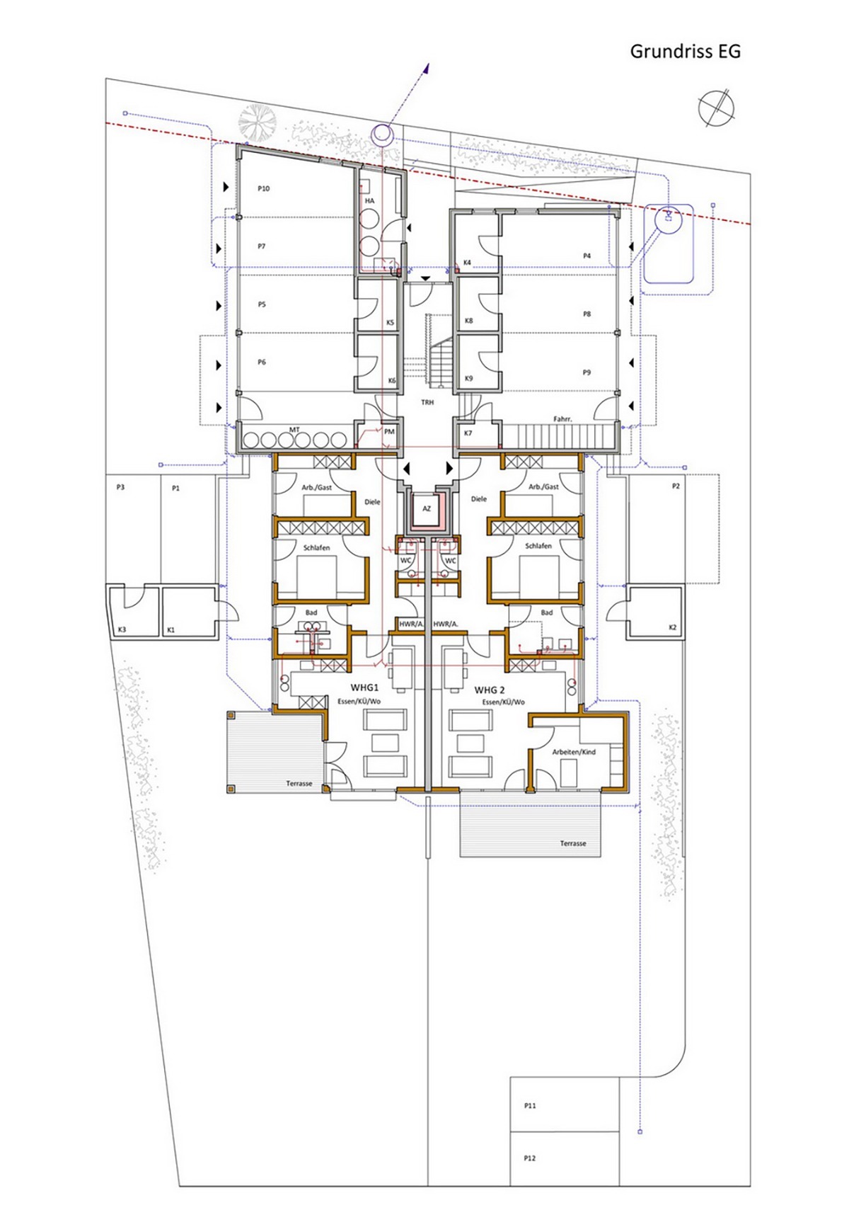
Im Erdgeschoss befinden sich zwei mit jeweils einer Garage verbundene Wohnungen; eine von ihnen wurde konsequent behindertengerecht gestaltet. Die andere Wohneinheit ist – ebenso wie die vier Einheiten im Obergeschoss und die drei weiteren Wohnungen unter dem Dach – barrierearm ausgeführt. Ein Fahrstuhl verbindet die Ebenen miteinander. Deshalb können Mieter auch im Alter bzw. bei sich verändernder Mobilität noch sehr lange in ihren gewohnten vertrauten vier Wänden verbleiben. Alle neun Wohnungen sind dank großzügiger Fenster lichtdurchflutet und verfügen über eigene Terrassen bzw. Balkone mit herrlicher Aussicht auf den beschaulichen Ortskern Neuenkirchens.
Das Ergebnis: Hochwertiges Wohnen in bester Lage mit ebenso komfortabler wie zukunftsgerechter Ausstattung – und eine höchst attraktive Immobilie für den Investor!
(Fotos: Simone Reukauf)

