Gebäudeart
Mehrfamilienhaus
Bauort
Bielefeld
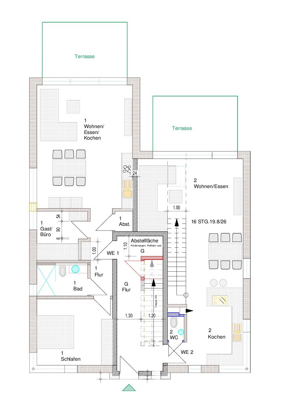
Wohnfläche
280 m2, 4 Wohneinheiten
Fassade
Putz/HPL-Platten
Dach
Satteldach, Tonglattziegel anthrazit
Architekt
Siegfried Wendker
ÜBER DAS PROJEKT
Nach nur einem halben Jahr Bauzeit erstrahlt das Mehrfamilienhaus in Bielefeld bereits in vollem Glanz. Liebe zum Detail hat der Bauherr bei diesem architektonisch anspruchsvollen Objekt auf jeden Fall bewiesen – kein Wunder, denn er ist vom Fach: Als Architekt legt er besonderen Wert darauf, hinter der schönen, modernen Fassade ein wohnliches und einladendes Ambiente zu bieten.
So überzeugt die Außenansicht von oben bis unten mit glatten Dachziegeln, einem hellen Putz und Fassadenelementen, deren Holzoptik perfekt auf das Erscheinungsbild der Fenster abgestimmt ist.
Nachhaltig gebaut - bis hin zu den stabilen Nebenkosten
Helligkeit, wohin man schaut: Große Fensterflächen – mit prägnanten Dreiecksfenstern bis hoch in die Giebel hinein – öffnen nicht nur den Blick, sondern lassen auch viel natürliches Tageslicht ins Innere. Auch hier fällt die freundliche Ausstrahlung sofort ins Auge.
Natürlich glänzt das Mehrfamilienhaus nach KfW-40-Plus-Standard ebenso mit inneren Werten wie hervorragender Dämmung und automatischer Lüftung inklusive Wärmerückgewinnung. Der auf der Südseite des Daches per Photovoltaik erzeugte Strom wird zum Teil für den Betrieb der hauseigenen Wärmepumpe genutzt.
„Hiervon profitieren nicht zuletzt auch die Mieter. Sie können den allgemein steigenden Energiepreisen ziemlich gelassen entgegensehen, denn die Schwankungen auf dem Energiemarkt betreffen sie kaum. Die Nebenkosten dürften daher sehr stabil auf einem eher niedrigen Niveau bleiben“, erklärt Sascha Lange, Geschäftsführer von Holzbau Heggemann.
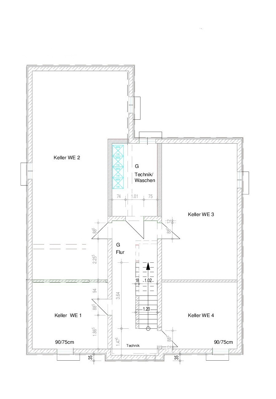
Bei der Errichtung dieses Mehrfamilienhauses kam eine Mischbauweise zum Einsatz. Das bedeutet: Die Holzrahmenbauweise, die unter anderem für die zügige Fertigstellung sorgte, wurde durch klassische Massivbauweise ergänzt. So entstand ein betonierter Keller für Abstellräume und Haustechnik, und auch das Treppenhaus wurde mit Beton erstellt.

